LEMON Manuals: Even more car manuals for everyone: 1960-2025
Home >> Saturn >> 2002 >> L200 Standard >> Repair and Diagnosis >> Accessories & Equipment >> Communication Devices >> Data Link Communication System >> Diagnostics >> DTC U2103: Fewer Controllers On Bus Than Programmed >> Notes
April 5, 2026: LEMON Manuals is launched! Read the announcement.

DTC U2103: Fewer Controllers On Bus Than Programmed: Notes

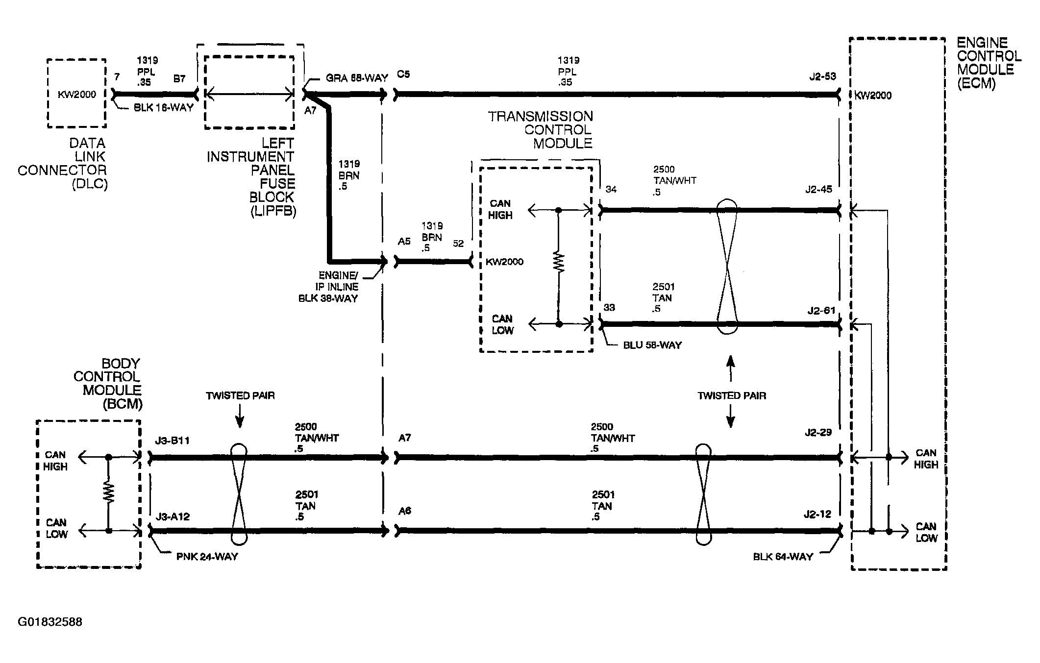
Fig 1: Fewer Controllers On BUS Than Programmed Schematic
G01832588Courtesy of GENERAL MOTORS CORP.

The Engine Control Module (ECM), Transaxle Control Module (TCM) and Body Control Module (BCM) communicate normal mode messages over the Controller Area Network (CAN) link circuits 2500 and 2501. Each controller on the CAN link uses a variable pulse width modulated square wave consisting of logic "0s" and logic "Is". A logic "0" is denoted as circuit 2501 at 1.5 volts with circuit 2500 at 3.5 volts resulting in a difference of 2 volts across the circuits. A logic "1" is denoted as both circuit 2500 and 2501 at 2.5 volts resulting in a difference of 0 volts across the circuits.

State of health messages are sent from each CAN controller on the link when the ignition is turned On as well as during normal vehicle operation. These messages allow the BCM, ECM and TCM to know that each controller on the link is functioning correctly. The ECM monitors the CAN link for low and high voltage faults. All controllers on the CAN link monitor each others messages and can set a DTC if information is not received. U2103 sets when the ECM detects fewer controllers communicating on the CAN bus than what is has programmed in memory.