LEMON Manuals: Even more car manuals for everyone: 1960-2025
Home >> Saturn >> 2007 >> Relay 3.9 1 >> Repair and Diagnosis >> External Pages >> Different car >> Section 43 (Data Communication System) >> Schematic and Routing Diagrams >> Body Control System Schematics
April 5, 2026: LEMON Manuals is launched! Read the announcement.

Body Control System Schematics

WARNING: This page is about a different car, the 2007 Saturn Outlook. However, it is still accessible from the selected car via links, so may be relevant.
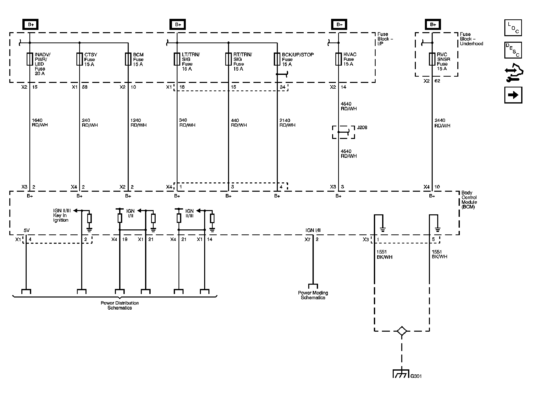
Fig 1: Module Power, Ground & References To Power Distribution & Power Moding Schematic
GM1844241Courtesy of GENERAL MOTORS CORP.
Fig 2: Subsystem References Schematic (1 Of 3)
GM1844242Courtesy of GENERAL MOTORS CORP.
Fig 3: Subsystem References Schematic (2 Of 3)
GM1844243Courtesy of GENERAL MOTORS CORP.
Fig 4: Subsystem References Schematic (3 Of 3)
GM1844244Courtesy of GENERAL MOTORS CORP.