LEMON Manuals: Even more car manuals for everyone: 1960-2025
Home >> Saturn >> 2007 >> Sky Red Line, Automatic >> Repair and Diagnosis >> External Pages >> Different car >> Section 34 (Anti-Lock Brake System, Traction Control System & Stability Control System) >> Schematic and Routing Diagrams >> Antilock Brake System Schematics
April 5, 2026: LEMON Manuals is launched! Read the announcement.

Antilock Brake System Schematics

WARNING: This page is about a different car, the 2007 Pontiac Solstice. However, it is still accessible from the selected car via links, so may be relevant.
Fig 1: Power, Ground and Wheel Speed Sensors
GM1829222Courtesy of GENERAL MOTORS CORP.
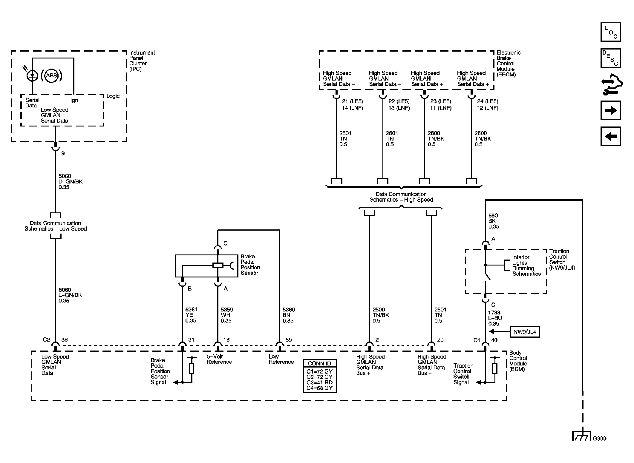
Fig 2: Brake Pedal Sensor, Indicator, and Traction Control Switch
GM1829228Courtesy of GENERAL MOTORS CORP.
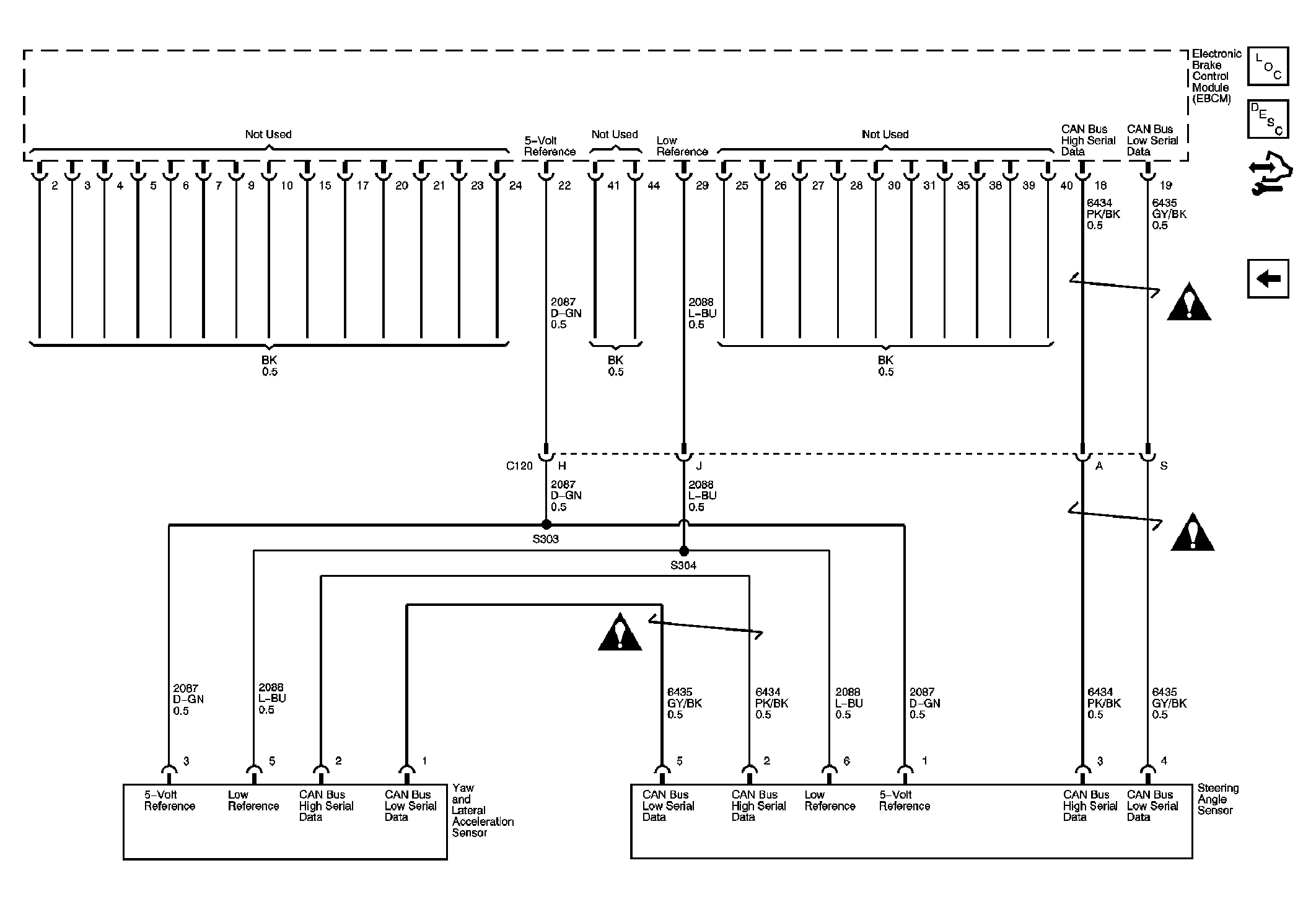
Fig 3: Stability Control Sensors (JL4)
GM1844122Courtesy of GENERAL MOTORS CORP.