LEMON Manuals: Even more car manuals for everyone: 1960-2025
Home >> Saturn >> 2007 >> Sky Red Line, Automatic >> Repair and Diagnosis >> External Pages >> Different car >> Section 89 (Data Communication System) >> Schematic and Routing Diagrams >> Body Control System Schematics
April 5, 2026: LEMON Manuals is launched! Read the announcement.

Body Control System Schematics

WARNING: This page is about a different car, the 2007 Pontiac Montana SV6, 2007 Chevrolet Uplander, and 2007 Buick Terraza. However, it is still accessible from the selected car via links, so may be relevant.
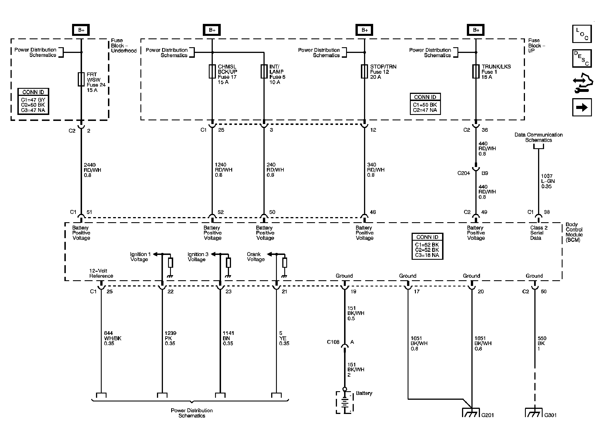
Fig 1: Ground, Power, and References to Data Communication and Power Distribution
GM1740069Courtesy of GENERAL MOTORS CORP.
Fig 2: References to Brakes, Cruise Control, Defogger, Exterior Lights, Horn, Object Detection, Power Moding, Shift Lock Control, and Wiper/Washer
GM1740071Courtesy of GENERAL MOTORS CORP.
Fig 3: References to Antilock Brake System, Cruise Control, HVAC, and Lighting
GM1740072Courtesy of GENERAL MOTORS CORP.
Fig 4: References to Door Locks, Lighting, Sliding Door and Theft Deterrent
GM1740075Courtesy of GENERAL MOTORS CORP.
Fig 5: References to Audible Warnings, HVAC, Immobilizer, Remote Function, Seat Heating and Cooling, Starting and Charging, and Theft Deterrent
GM1740076Courtesy of GENERAL MOTORS CORP.