LEMON Manuals: Even more car manuals for everyone: 1960-2025
Home >> Saturn >> 2009 >> Sky Red Line, Automatic >> Repair and Diagnosis >> External Pages >> Different car >> Section 88 (Data Communication System) >> Schematic & Routing Diagrams >> Body Control System Schematics
April 5, 2026: LEMON Manuals is launched! Read the announcement.

Body Control System Schematics

WARNING: This page is about a different car, the 2008 Saturn Sky and 2008 Pontiac Solstice. However, it is still accessible from the selected car via links, so may be relevant.
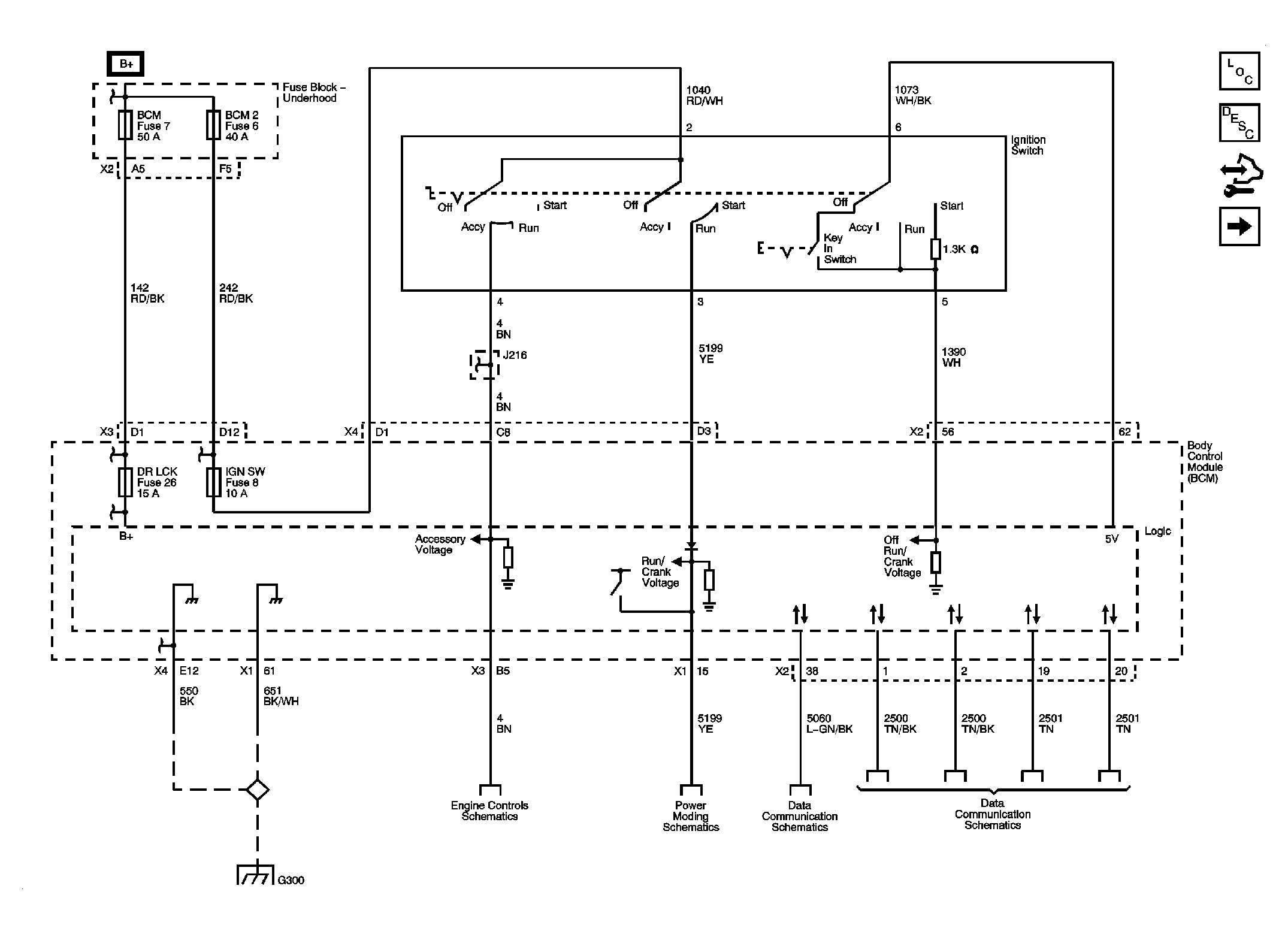
Fig 1: Power, Ground & Data Link Schematic
GM1914243Courtesy of GENERAL MOTORS CORP.
Fig 2: Lighting System References Schematic
GM1914248Courtesy of GENERAL MOTORS CORP.
Fig 3: Brakes, Cooling System, Cruise & Door Lock References Schematic
GM1914251Courtesy of GENERAL MOTORS CORP.
Fig 4: Defogger, Horn, Release Systems & Wiper/Washer References Schematic
GM1914254Courtesy of GENERAL MOTORS CORP.