LEMON Manuals: Even more car manuals for everyone: 1960-2025
Home >> Saturn >> 2009 >> Vue Red Line, AWD >> Repair and Diagnosis >> External Pages >> Different car >> Section 1186 (Data Communication System) >> Schematic and Routing Diagrams >> Body Control System Schematics
April 5, 2026: LEMON Manuals is launched! Read the announcement.

Body Control System Schematics

WARNING: This page is about a different car, the 2008 Saturn Vue. However, it is still accessible from the selected car via links, so may be relevant.
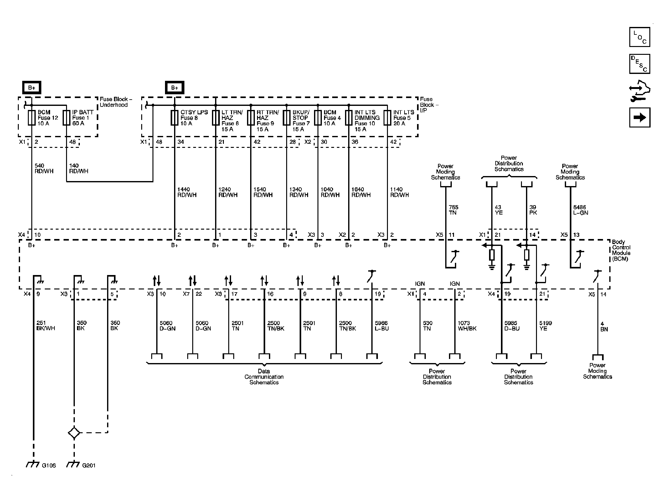
Fig 1: Power, Grounds and Data Communications - Schematic
GM1882419Courtesy of GENERAL MOTORS CORP.
Fig 2: References 1 of 3 - Schematic
GM1882448Courtesy of GENERAL MOTORS CORP.
Fig 3: References 2 of 3 - Schematic
GM1882484Courtesy of GENERAL MOTORS CORP.
Fig 4: References 3 of 3 - Schematic
GM1882597Courtesy of GENERAL MOTORS CORP.