LEMON Manuals: Even more car manuals for everyone: 1960-2025
Home >> Subaru >> 2008 >> Tribeca Base >> Repair and Diagnosis >> Transmission >> Automatic Trans >> Automatic Transmission Control Systems >> Select Lever >> Disassembly
April 5, 2026: LEMON Manuals is launched! Read the announcement.

Select Lever: Disassembly

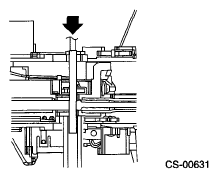
  1. Shift the select lever to "N" range.
  2. Lower the grip cover.
    Fig 1: Locating Select Lever Position
    G05031902Courtesy of SUBARU OF AMERICA, INC.
  3. Remove the grip pin.
    Fig 2: Removing Grip Pin
    G05031903Courtesy of SUBARU OF AMERICA, INC.
  4. Remove the grip assembly.
    Fig 3: Identifying Grip Assembly
    G05031904Courtesy of SUBARU OF AMERICA, INC.
  5. Remove the grip cover.
    Fig 4: Identifying Grip Cover
    G05031905Courtesy of SUBARU OF AMERICA, INC.
  6. Remove the indicator light and then remove the 9) Remove the bulb case bulb.
    Fig 5: Removing Bulb Case Bulb
    G05031906Courtesy of SUBARU OF AMERICA, INC.
  7. Remove the shift lock solenoid assembly.
    Fig 6: Locating Shift Lock Solenoid Assembly
    G05031907Courtesy of SUBARU OF AMERICA, INC.
  8. Remove the indicator assembly.
    Fig 7: Locating Indicator Assembly
    G05031908Courtesy of SUBARU OF AMERICA, INC.
  9. Remove the bulb case.
    Fig 8: Identifying Bulb Case
    G05031909Courtesy of SUBARU OF AMERICA, INC.
  10. Remove the plate light guide.
    Fig 9: Identifying Plate Light Guide
    G05031910Courtesy of SUBARU OF AMERICA, INC.
  11. Remove the position plate.
    Fig 10: Identifying Position Plate
    G05664293Courtesy of SUBARU OF AMERICA, INC.
  12. Remove the blind assembly.
    Fig 11: Identifying Blind Assembly
    G05031912Courtesy of SUBARU OF AMERICA, INC.
  13. Remove blind A and B.
    Fig 12: Identifying Blind A And B
    G05664295Courtesy of SUBARU OF AMERICA, INC.
  14. Remove the clip while being careful not to break the pin, and remove all switches.
    Fig 13: Identifying Switches
    G05664296Courtesy of SUBARU OF AMERICA, INC.
  15. Remove the connector from the base assembly using a flat-tip screwdriver.
    Fig 14: Removing Connector From Base Assembly Using Flat-Tip Screwdriver
    G05031915Courtesy of SUBARU OF AMERICA, INC.
  16. Remove all terminals from the connectors using a flat-tip screwdriver.
    Fig 15: Removing Terminals From Connectors Using Flat-Tip Screwdriver
    G05031916Courtesy of SUBARU OF AMERICA, INC.
  17. Remove the shift lock solenoid from the lock lever bracket.
    Fig 16: Removing Shift Lock Solenoid From Lock Lever Bracket
    G05031917Courtesy of SUBARU OF AMERICA, INC.
  18. Remove the bushing.
    Fig 17: Identifying Bushing
    G05031918Courtesy of SUBARU OF AMERICA, INC.
  19. Remove the lock lever bushing.
    Fig 18: Removing Lock Lever Bushing
    G05031919Courtesy of SUBARU OF AMERICA, INC.
  20. Remove the lock lever.
    Fig 19: Identifying Lock Lever
    G05031920Courtesy of SUBARU OF AMERICA, INC.
  21. Remove the release rod and spring.
    Fig 20: Removing Release Rod And Spring
    G05031921Courtesy of SUBARU OF AMERICA, INC.
  22. Remove the cable bracket.
    Fig 21: Removing Cable Bracket
    G05031922Courtesy of SUBARU OF AMERICA, INC.
  23. Remove the spacer.
    Fig 22: Removing Spacer
    G05031923Courtesy of SUBARU OF AMERICA, INC.
  24. Remove the dust cover and dust cover bracket.
    Fig 23: Removing Dust Cover And Dust Cover Bracket
    G05664306Courtesy of SUBARU OF AMERICA, INC.
  25. Remove the spacer.
    Fig 24: Removing Spacer
    G05031925Courtesy of SUBARU OF AMERICA, INC.
  26. Using a press, remove the shift position pin.
    Fig 25: Removing Shift Position Pin
    G05031926Courtesy of SUBARU OF AMERICA, INC.
  27. Remove the clips, then remove the shaft.
    Fig 26: Identifying Shaft
    G05031927Courtesy of SUBARU OF AMERICA, INC.
  28. Remove the arm assembly.
  29. Remove the bushing.
    Fig 27: Removing Bushing
    G05031928Courtesy of SUBARU OF AMERICA, INC.
  30. Remove the selector arm assembly.
    Fig 28: Removing Selector Arm Assembly
    G05031929Courtesy of SUBARU OF AMERICA, INC.
  31. Remove the clip while being careful not to break the pin, then remove the shift button switch.
    Fig 29: Removing Clip
    G05031930Courtesy of SUBARU OF AMERICA, INC.
  32. Remove the select shaft.
    Fig 30: Removing Select Shaft
    G05031931Courtesy of SUBARU OF AMERICA, INC.
  33. Remove the tube cross plate.
    Fig 31: Removing Tube Cross Plate
    G05031932Courtesy of SUBARU OF AMERICA, INC.
  34. Remove the mode change switch.
    Fig 32: Removing Mode Change Switch
    G05031933Courtesy of SUBARU OF AMERICA, INC.
  35. Remove the detent check block.
    Fig 33: Removing Detent Check Block
    G05031934Courtesy of SUBARU OF AMERICA, INC.