LEMON Manuals: Even more car manuals for everyone: 1960-2025
Home >> Toyota >> 2008 >> Matrix Base, Standard >> Repair and Diagnosis >> Brakes >> Traction Control >> Brake Control >> Skid Control Sensor >> Installation
April 5, 2026: LEMON Manuals is launched! Read the announcement.

Skid Control Sensor: Installation

  1. INSTALL SKID CONTROL SENSOR 
    1. Clean the contacting surface of the axle hub and a new speed sensor.
      NOTE: Do not stick any foreign objects to the sensor rotor.
    2. Place the speed sensor on the axle hub so that the connector makes the lowest position under the on-vehicle condition.
      Fig 1: Identifying Speed Sensor
      G05194992Courtesy of © TOYOTA, LICENSE AGREEMENT TMS1002
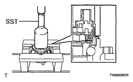
    3. Using SST and press, install the new speed sensor to axle hub.

      SST 09214-76011 

    Fig 2: Identifying SST For Installing Speed Sensor To Axle Hub
    G05194993Courtesy of © TOYOTA, LICENSE AGREEMENT TMS1002
  2. INSTALL REAR AXLE HUB AND BEARING ASSEMBLY LH  (See INSTALLATION )
  3. CONNECT SKID CONTROL SENSOR WIRE 
    1. Connect the skid control sensor wire connector to the skid control sensor.
    Fig 3: Identifying Skid Control Sensor Wire Connector
    G05194990Courtesy of © TOYOTA, LICENSE AGREEMENT TMS1002
  4. INSTALL REAR BRAKE DRUM SUB-ASSEMBLY (for Drum Type) 
  5. INSTALL REAR DISC (for Disc Type) 
  6. INSTALL REAR DISC BRAKE CALIPER ASSEMBLY LH (for Disc Type) 
  7. INSTALL REAR WHEEL 

    Torque: 103 N*m (1,050 kgf*cm, 76 ft.*lbf) 

  8. INSPECT AND ADJUST REAR WHEEL ALIGNMENT 

    HINT:

    See ADJUSTMENT

  9. CHECK ABS SPEED SENSOR SIGNAL 

    HINT:

    See TEST MODE PROCEDURE