LEMON Manuals: Even more car manuals for everyone: 1960-2025
Home >> Volvo >> 2016 >> S80 T5 >> Repair and Diagnosis >> Engine Performance >> Ignition System >> Ignition And Control Systems - Design And Function >> Engine Control Module (ECM) >> Engine Control Module (ECM) [2007-2010, B8444S] >> Function >> Camshaft Control (CVVT)
April 5, 2026: LEMON Manuals is launched! Read the announcement.

Camshaft Control (CVVT)

GLL149911Courtesy of VOLVO CARS CORPORATION

Both intake camshafts and exhaust camshafts are regulated by the Engine Control Module (ECM). The intake camshafts are located in the middle of the engine, while the exhaust camshafts are located furthest out. The camshafts are divided into two banks.

Bank 1 (front cylinder row); cylinders 1, 3, 5 and 7.

Bank 2 (rear cylinder row, closest to the passenger compartment); cylinders 2, 4, 6 and 8.

The inlet camshafts are driven primarily by the crankshaft and chain, whilst the exhaust camshafts are driven by a chain from the inlet camshafts.

When each camshaft is set at the factory, it is aligned with the position of the crankshaft. The position of the camshaft in relation to the crankshaft is designated the camshaft 0 position  (default setting). During camshaft control (CVVT) the camshaft 0-position is offset so that the cam timing changes. The opening and closing of the intake and exhaust valves can be changed to match the camshaft. Engine performance can be increased, idle quality increased and emissions reduced by regulating the camshaft timing changes.

The engine control module (ECM) detects the position of the camshafts by comparing the signals from the engine speed (RPM) sensor (1) (crankshaft position) and the camshaft position (CMP) sensors (2) (camshaft positions). The engine control module (ECM) then controls the angle of the camshaft by controlling the oil flow to the CVVT unit using the reset valve camshaft (3).

There are diagnostics for this function. See also: CAMSHAFT DIAGNOSTICS (CVVT)

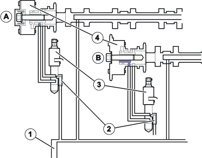
Controlling, reset valve camshaft 

GLL149906Courtesy of VOLVO CARS CORPORATION

1. Oil filter reset valve camshaft.

2. Oil duct (pressure, inlet).

3. Duct leading to CVVT unit chamber (deployment).

4. Duct leading to CVVT unit chamber (deployment).

The camshaft reset valve controls the oil flow to the continuous variable valve timing (CVVT) unit. The engine control module (ECM) uses a pulse width modulation (PWM) signal to control the valve. See also: CAMSHAFT RESET VALVE (CONTINUOUS VARIABLE VALVE TIMING (CVVT)) 

Controlling, CVVT units 

GLL149908Courtesy of VOLVO CARS CORPORATION

The CVVT units are the "Vane" type which means that the CVVT unit rotors are turned by oil pressure on one, or the other, side of the rotor wings.

A. CVVT unit exhaust

B. CVVT unit inlet

1. Timing belt pulley inlet camshaft (primary, inlet camshaft driven by the crankshaft).

2. Timing belt pulley inlet -/exhaust camshaft (secondary, exhaust camshaft driven by inlet camshaft).

3. Oil duct reset valve camshaft (pressure).

4. Oil duct for controlling CVVT unit.

5. Oil duct for return CVVT unit.

6. Spring (CVVT unit exhaust camshaft only).

The continuous variable valve timing (CVVT) unit allows the position of the camshaft to be adjusted relative to the crankshaft.

The camshaft is secured to the CVVT unit rotor. The rotor (and with it the camshaft) rotates in relation to the timing belt pulley (1) by the oil pressure building up on one or both sides of the rotor vanes in the CVVT unit.

The difference in function between the exhaust camshaft (A) and inlet camshaft (B) CVVT unit is that the exhaust camshaft CVVT unit is equipped with a spring. The force of the spring makes the CVVT unit deploy the camshaft. The function causes faster deployment of the exhaust camshaft at engine start-up, before the oil pressure build in the engine.

Control occurs according to the following during deployment/return of the camshaft. 

GLL149915Courtesy of VOLVO CARS CORPORATION

A. Exhaust camshaft

B. Inlet camshaft

The reset valve is controlled by the engine control module (ECM) by high frequency, switching for deployment and return. This results in rapid and precise control. Both camshafts can be controlled up to 40 crankshaft degrees.