LEMON Manuals: Even more car manuals for everyone: 1960-2025
Home >> Mazda >> 2023 >> CX-50 S Select >> Repair and Diagnosis >> Body & Frame >> Windows >> Glass/Windows/Mirrors >> Windshield Installation >> Not Reusing Windshield
April 5, 2026: LEMON Manuals is launched! Read the announcement.

Not Reusing Windshield

  1. Inspect the windshield for cracks. If it is cracked, chamfer the edges of the windshield using sandpaper.
  2. Clean, then degrease along the perimeter of the bonding area on the windshield.
  3. Apply primer to the area of the glass shown in the figure below.
    • Follow the primer product instructions for the drying time.
    CAUTION:
    • To prevent weakening of the primer adhesion, keep the bonding surface free of dirt, moisture, and grease. Do not touch the surface with your hand.
    NOTE:
    • Apply primer to the hollowed marks in the ceramic coating.
    G15742753Courtesy of MAZDA MOTORS CORP.
  4. Cut away the old sealant using a utility knife so that 1-2 mm {0.04-0.08 in} thickness of sealant remains along the perimeter of the frame.
    G15742754Courtesy of MAZDA MOTORS CORP.
  5. Clean and degrease along the perimeter of the bonding area on the body.
  6. Apply primer to the area of the body shown in the figure below.
    • Follow the primer product instructions for the drying time.
    CAUTION:
    • To prevent weakening of the primer adhesion, keep the bonding surface free of dirt, moisture, and grease. Do not touch the surface with your hand.
    G15742755Courtesy of MAZDA MOTORS CORP.
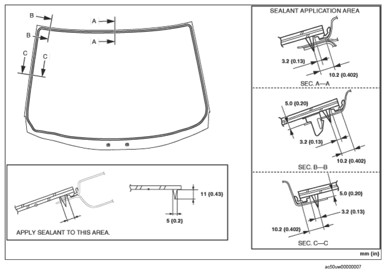
  7. Apply sealant to the area of the glass surface as shown in the figure below.
    G15742756Courtesy of MAZDA MOTORS CORP.
  8. Insert the positioning pins to the body and install the windshield.
  9. Install the wiring harness clip. (With windshield wiper de-icer)
    G15742757Courtesy of MAZDA MOTORS CORP.
  10. Connect the windshield wiper de-icer connector. (With windshield wiper de-icer)
  11. Install the windshield wiper motor. (See WINDSHIELD WIPER MOTOR AND LINK REMOVAL/INSTALLATION .)
  12. Install the cowl grille. (See COWL GRILLE REMOVAL/INSTALLATION .)
  13. Verify that the gaps and heights between the side frame and windshield, between the roof panel and windshield, and between the cowl grille and windshield are within the ranges shown in the figure below, and completely press along the perimeter of the glass.
    G15742758Courtesy of MAZDA MOTORS CORP.
  14. Install the following parts:
    1. Rearview mirror (Without auto-dimming rearview mirror) (See REARVIEW MIRROR REMOVAL/INSTALLATION .)
    2. Auto-dimming rearview mirror (With auto-dimming rearview mirror) (See AUTO-DIMMING REARVIEW MIRROR REMOVAL/INSTALLATION .)
    3. Rain sensor (See RAIN SENSOR REMOVAL/INSTALLATION .)
    4. Forward sensing camera (FSC) (With forward sensing camera (FSC)) (See FORWARD SENSING CAMERA (FSC) REMOVAL/INSTALLATION .)
    5. Sensor cover (See SENSOR COVER REMOVAL/INSTALLATION .)
    6. Assist handle (front) (See ASSIST HANDLE REMOVAL/INSTALLATION .)
    7. Front map light (See FRONT MAP LIGHT REMOVAL/INSTALLATION .)
    8. Sunvisor (See SUNVISOR REMOVAL/INSTALLATION .)
    9. A-pillar trim (See A-PILLAR TRIM REMOVAL/INSTALLATION .)
    10. Front fender molding (See FRONT FENDER MOLDING REMOVAL/INSTALLATION .)
    11. Windshield wiper arm and blade (See WINDSHIELD WIPER MOTOR AND LINK REMOVAL/INSTALLATION .)
  15. Connect the negative battery terminal. (See NEGATIVE BATTERY TERMINAL DISCONNECTION/CONNECTION .)
  16. Allow the sealant to harden completely.

    Reference for sealant hardening time: 24 h

    NOTE:
    • Follow the product instructions for the sealant hardening time.
  17. Adjust the forward sensing camera (FSC) aiming. (See FORWARD SENSING CAMERA (FSC) AIMING .)
  18. If the rain sensor is replaced, perform the sensitivity setting procedure for the auto lights. (See RAIN SENSOR REMOVAL/INSTALLATION .)