LEMON Manuals: Even more car manuals for everyone: 1960-2025
Home >> Mazda >> 2023 >> CX-50 S Select >> Repair and Diagnosis >> Body & Frame >> Windows >> Glass/Windows/Mirrors >> Windshield Installation >> Reusing Windshield
April 5, 2026: LEMON Manuals is launched! Read the announcement.

Reusing Windshield

  1. Remove the sealant along the perimeter of the glass using a utility knife.
  2. Inspect the windshield for cracks. If it is cracked, chamfer the edges of the windshield using sandpaper.
  3. Clean then degrease along the perimeter of the bonding area on the windshield.
  4. Align the alignment marks made before removal and install the pins to the windshield referring to the figure.
    G15742745Courtesy of MAZDA MOTORS CORP.
  5. Install the windshield molding.
    G15742746Courtesy of MAZDA MOTORS CORP.
  6. Apply primer to the area of the glass shown in the figure above.
    • Follow the primer product instructions for the drying time.
    CAUTION:
    • To prevent weakening of the primer adhesion, keep the bonding surface free of dirt, moisture, and grease. Do not touch the surface with your hand.
    NOTE:
    • Apply primer to the hollowed marks in the ceramic coating.
    G15742747Courtesy of MAZDA MOTORS CORP.
  7. Cut away the old sealant using a utility knife so that 1-2 mm {0.04-0.08 in} thickness of sealant remains along the perimeter of the frame.
    G15742748Courtesy of MAZDA MOTORS CORP.
  8. Clean and degrease along the perimeter of the bonding area on the body.
  9. Apply primer to the area of the body shown in the figure below.
    • Follow the primer product instructions for the drying time.
    CAUTION:
    • To prevent weakening of the primer adhesion, keep the bonding surface free of dirt, moisture, and grease. Do not touch the surface with your hand.
    G15742749Courtesy of MAZDA MOTORS CORP.
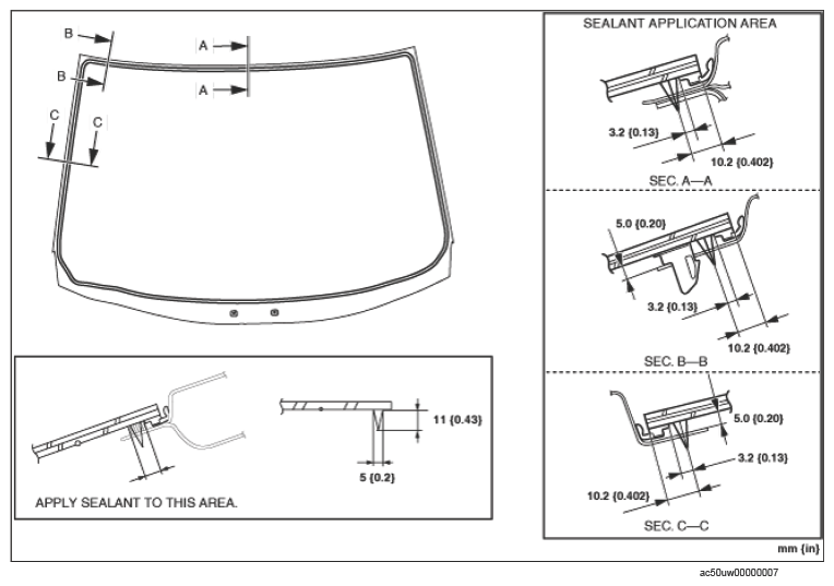
  10. Apply sealant to the area of the glass surface as shown in the figure below.
    G15742750Courtesy of MAZDA MOTORS CORP.
  11. Insert the positioning pins to the body and install the windshield.
  12. Install the wiring harness clip. (With windshield wiper de-icer)
    G15742751Courtesy of MAZDA MOTORS CORP.
  13. Connect the windshield wiper de-icer connector. (With windshield wiper de-icer)
  14. Install the windshield wiper motor. (See WINDSHIELD WIPER ARM AND BLADE REMOVAL/INSTALLATION .)
  15. Install the cowl grille. (See COWL GRILLE REMOVAL/INSTALLATION .)
  16. Verify that the gaps and heights between the side frame and windshield, between the roof panel and windshield, and between the cowl grille and windshield are within the ranges shown in the figure below, and completely press along the perimeter of the glass.
    G15742752Courtesy of MAZDA MOTORS CORP.
  17. Connect the auto-dimming rearview mirror connector. (With auto-dimming rearview mirror) (See AUTO-DIMMING REARVIEW MIRROR REMOVAL/INSTALLATION .)
  18. Connect the forward sensing camera (FSC) connector. (With forward sensing camera (FSC)) (See FORWARD SENSING CAMERA (FSC) AIMING .)
  19. Connect the rain sensor connector. (See RAIN SENSOR REMOVAL/INSTALLATION .)
  20. Install the following parts:
    1. Sensor cover (See SENSOR COVER REMOVAL/INSTALLATION .)
    2. Assist handle (front) (See ASSIST HANDLE REMOVAL/INSTALLATION .)
    3. Front map light (See FRONT MAP LIGHT REMOVAL/INSTALLATION .)
    4. Sunvisor (See SUNVISOR REMOVAL/INSTALLATION .)
    5. A-pillar trim (See A-PILLAR TRIM REMOVAL/INSTALLATION .)
    6. Front fender molding (See FRONT FENDER MOLDING REMOVAL/INSTALLATION .)
    7. Windshield wiper arm and blade (See WINDSHIELD WIPER MOTOR AND LINK REMOVAL/INSTALLATION .)
  21. Connect the negative battery terminal. (See NEGATIVE BATTERY TERMINAL DISCONNECTION/CONNECTION .)
  22. Allow the sealant to harden completely.

    Reference for sealant hardening time: 24 h

    NOTE:
    • Follow the product instructions for the sealant hardening time.
  23. If the forward sensing camera (FSC) is replaced, perform forward sensing camera (FSC) aiming. (See FORWARD SENSING CAMERA (FSC) AIMING .)
  24. If the rain sensor is replaced, perform the sensitivity setting procedure for the auto lights. (See RAIN SENSOR REMOVAL/INSTALLATION .)